Search

Leave a Message

Thank you for your message. We will be in touch with you shortly.

Explore Our Properties

Property Description

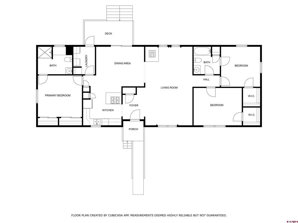
Welcome to 468 Rio Grande Road--an ideally located and generously sized home nestled on the favored street of Rio Grande Road in Alpine Village #5. This 1974 double-wide offers approximately 1,792 square feet of living space on a spacious 0.43+- acre corner lot adorned with mature trees and a river view. The home features a thoughtful split-bedroom layout, offering added privacy with two bedrooms that each have attached bathrooms. The large living room invites comfort and gathering, complete with a wood-burning stove that adds warmth and character. The open-concept kitchen provides a clear line of sight into the living room, dining area, and out to the rear deck--perfect for entertaining or simply enjoying the peaceful setting. Step onto the back deck and take in the view and calming sounds of the Rio Grande River. While the property line doesn't extend to the river itself, another lot sits between the home and the water's edge. Still, the river's presence is unmistakable and enhances the overall appeal. This non-HOA neighborhood is located within Rio Grande County, allowing for short-term rentals in accordance with county regulations--making this an excellent option for a full-time residence, seasonal getaway, or income-producing property. Rehabilitated in 2021, this home offers both comfort and convenience, with front access via a handicap ramp or steps. If you're looking for a property with space, location, and opportunity, 468 Rio Grande Road delivers.

Overview

Property Status
Pending
Lot Size
0.43 Acres
MLS ID
827199
Property Type
Manufactured-Mobile
Year Built
1974

Features & Amenities

Total Area
1,792 Sq.Ft.
Neighborhood
South Fork
Architecture Styles
Mobile Home
View Description
River
Stories
1
Water Source
Well
Utilites
Electricity Available, High Speed Internet Available
Roof
Metal
Lot Features
Corner Lot, Wooded
Heat Type
Forced Air, Propane, Wood
Air Conditioning
Window Unit(s), Wall Window Unit(s)
Fireplace
Living Room, Wood Burning Stove
Appliances
Dryer, Dishwasher, Oven, Range, Refrigerator, Trash Compactor
Other Interior Features
Eat-in Kitchen, Kitchen/Dining Combo, Main Level Primary
Sewer
Septic Tank
Substructure
Skirt
Other Exterior Features
Deck
Elementary School
Open Enrollment
Middle School
Open Enrollment
High School
Open Enrollment
Sales Price
$227,875
Real Estate Tax
$1,066/yr

Downloads

468 Rio Grande Road

Schedule a Tour

We would love to help you see this beautiful home! As a full-service brokerage, we can help you tour. Please submit an offer, and answer questions about the buying process.

Thank you

for your interest in 468 Rio Grande Road, South Fork, CO 81154

468 Rio Grande Road
Navigate
South Fork

Explore South Fork

South Fork, Colorado, is a charming mountain town nestled at the base of Wolf Creek Pass, renowned for its abundant snowfall—averaging over 430 inches annually—making it a haven for winter sports enthusiasts. Beyond skiing and snowboarding, South Fork offers a plethora of year-round outdoor activities, including hiking, fishing, and ATV riding. With a population of approximately 615 residents and a median household income of $75,938, the town provides a welcoming community for those seeking a blend of adventure and tranquility.

read more

Mortgage Calculator

Estimate your monthly mortgage payment, including the principal and interest, property taxes, and HOA. Adjust the values to generate a more accurate rate.
$0,000 Your Payment 20 15 65
$0,000 Your Payment

I'm Interested In

468 Rio Grande Road

or
  • CallAundrea Lillard

    License #100104397

    719-657-5044
  • Explore Our

    Featured Listings

    • 3372 Bear Creek Circle Sold

      $1,066,358

      3372 Bear Creek Circle, South Fork, CO 81154

      • 4 Beds
      • 4 Baths
      • 3,804 Sq.Ft.
    • 196 Million Lane Sold

      $757,000

      196 Million Lane, South Fork, CO 81154

      • 4 Beds
      • 3 Baths
      • 2,487 Sq.Ft.
    • 06729 County Road DD.5 For Sale

      $749,900

      06729 County Road DD.5, La Jara, CO 81140

      • 4 Beds
      • 2 Baths
      • 2,736 Sq.Ft.
    • 23144 County Road 27 For Sale

      $580,000

      23144 County Road 27, La Junta, CO 81050

      • 4 Beds
      • 3 Baths
      • 2,959 Sq.Ft.
    • 6135 County Road 15 For Sale

      $459,000

      6135 County Road 15, South Fork, CO 81154

      • 2 Beds
      • 3 Baths
      • 951 Sq.Ft.
    • 74 Owhi Road Sold

      $415,000

      74 Owhi Road, South Fork, CO 81154

      • 1 Bed
      • 2 Baths
      • 1,272 Sq.Ft.
    • 2 Cedar Drive Sold

      $379,000

      2 Cedar Drive, South Fork, CO 81154

      • 3 Beds
      • 2 Baths
      • 1,540 Sq.Ft.
    • 175 Orondoa Road Sold

      $370,000

      175 Orondoa Road, South Fork, CO 81154

      • 3 Beds
      • 2 Baths
      • 1,544 Sq.Ft.
    • 392 Toquima Drive Sold

      $340,000

      392 Toquima Drive, South Fork, CO 81154

      • 2 Beds
      • 2 Baths
      • 1,628 Sq.Ft.
    • 351 Loveland Road Pending

      $282,000

      351 Loveland Road, South Fork, CO 81154

      • 1 Bed
      • 2 Baths
      • 862 Sq.Ft.
    • 39 Oklatex Lane Sold

      $274,750

      39 Oklatex Lane, South Fork, CO 81154

      • 1 Bed
      • 2 Baths
      • 805 Sq.Ft.
    • TBD El Dorado Lane Sold

      $270,000

      TBD El Dorado Lane, South Fork, CO 81154

      • 144 Sq.Ft.
    • 126 Blackhawk Road Sold

      $261,000

      126 Blackhawk Road, South Fork, CO 81154

      • 2 Beds
      • 2 Baths
      • 1,184 Sq.Ft.
    • 468 Rio Grande Road Pending

      $227,875

      468 Rio Grande Road, South Fork, CO 81154

      • 3 Beds
      • 2 Baths
      • 1,792 Sq.Ft.
    • 149 Lots 2 & 3 Escondida Drive Sold

      $217,000

      169/209 Lots 2 & 3 Escondida Drive, South Fork, CO 81154

    • 46201 County Road T Sold

      $185,000

      46201 County Road T, Saguache, CO 81149

      • 2 Beds
      • 2 Baths
      • 1,216 Sq.Ft.
    • 63 Doe Circle Sold

      $170,000

      63 Doe Circle, South Fork, CO 81154

    • 116 Okie Lane Sold

      $162,000

      116 Okie Lane, South Fork, CO 81154

      • 1 Bed
      • 2 Baths
      • 840 Sq.Ft.
    • 545 Church Creek Drive Sold

      $140,000

      545 Church Creek Drive, South Fork, CO 81154

    • 396 Frontier Way For Sale

      $115,000

      396 Frontier Way, South Fork, CO 81154

    • 227 Red Feather Road For Sale

      $67,244

      227 Red Feather Road, South Fork, CO 81154

    • 67 Okla Tex Lane Sold

      $60,000

      67 Okla Tex Lane, South Fork, CO 81154

      • 1 Bed
      • 1 Bath
      • 330 Sq.Ft.
    • 66 Kenosha Pass Rd Sold

      $54,900

      66 Kenosha Pass Rd, South Fork, CO 81154

    • 162 Rayburn Rd Sold

      $46,500

      162 Rayburn Rd, South Fork, CO 81154

    • 129 Rayburn Road For Sale

      $37,000

      129 Rayburn Road, South Fork, CO 81154

    • TBD County Road 71 Sold

      $35,000

      TBD County Road 71, Del Norte, CO 81132

    • 1750 County Road 22 Sold

      $31,000

      1750 County Road 22, Del Norte, CO 81132

    • 175 & 183 Ouray Road Sold

      $30,500

      175 & 183 Ouray Road, South Fork, CO 81154

    • 122 Kenosha Road Sold

      $4,000

      122 Kenosha Road, South Fork, CO 81154

    View All

    Follow Us On Instagram